Werkleitungen
TCS Allmendigen 2024, Allmendigen

Kategorie
Bauherrschaft
TCS Bern
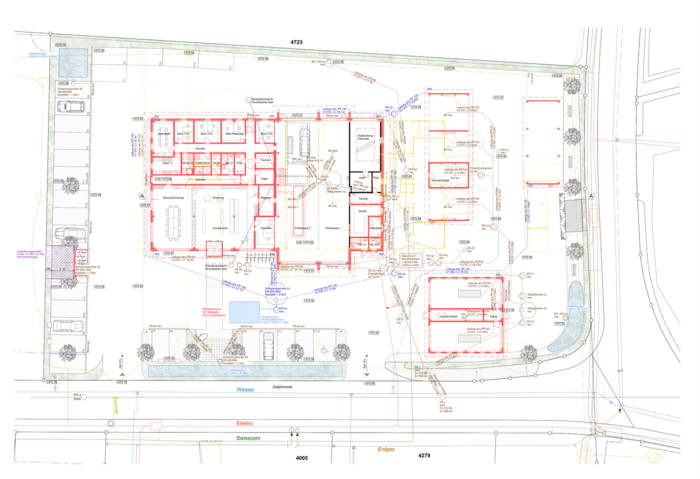
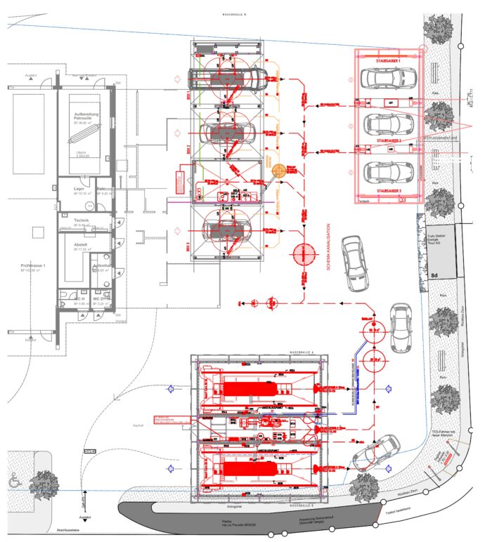
Beim Neubau einer Waschanlage haben wir die Planung der Werkleitungen und der Regenwasser-Versickerung übernommen. Die besondere Herausforderung lag in der Umsetzung unter sehr engen Platzverhältnissen. Dabei kamen sowohl unterirdische als auch oberirdische Lösungen zum Einsatz, um das Regenwasser effizient abzuleiten und vor Ort zu versickern.
Auftraggeber: anneler hungerbühler ag